
2023
đ Localisation : Ilafy â Antananarivo
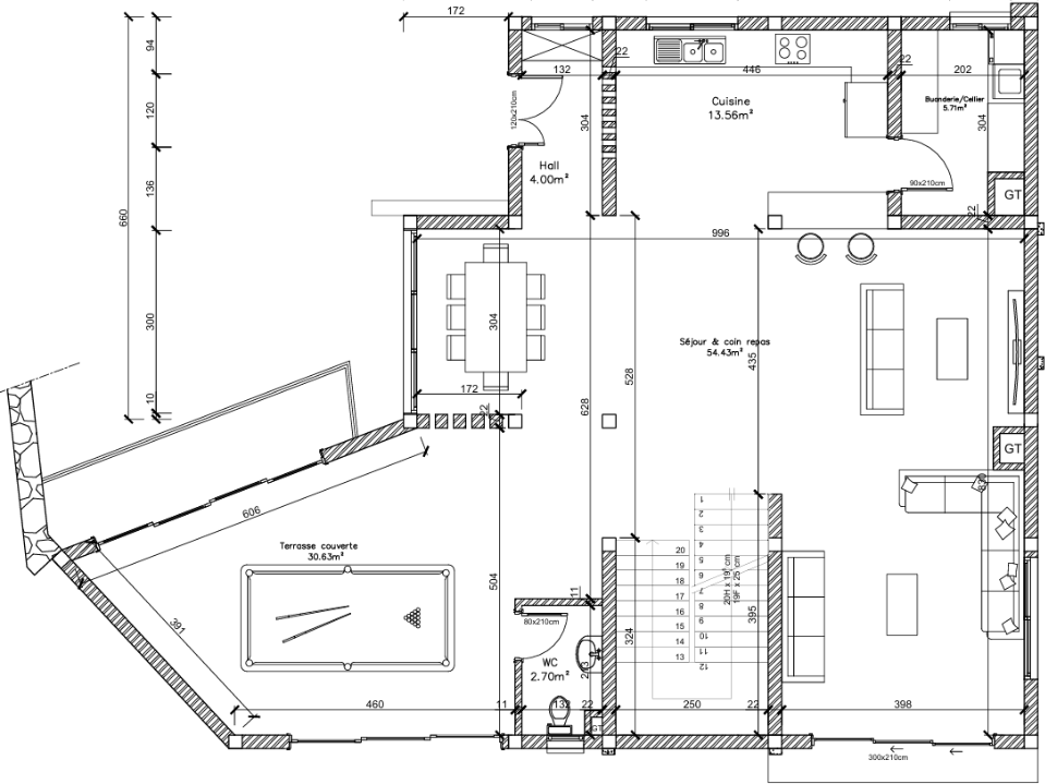
đą Usage : Habitation
đ Surface totale : 117,34 mÂČ
đ Nombre de niveaux : R+1 avc sous sol
đ Type de construction : Nouvelle construction
đš Style architectural : Moderne
đ Services rĂ©alisĂ©s par Trano 3D : APS, APD
đ Un jeu de volumes maĂźtrisĂ© sur les hauteurs dâIlafy
ĂdifiĂ©e sur un terrain de 300 mÂČ en forte pente, cette villa contemporaine sâillustre par une exploitation ingĂ©nieuse de chaque niveau. Le garage en sous-sol libĂšre les volumes supĂ©rieurs pour accueillir des espaces de vie lumineux, bien ventilĂ©s et tournĂ©s vers le paysage.
La façade joue avec les textures et les matĂ©riaux sobres, tandis que les terrasses ouvertes aux orientations Nord, Sud et Ouest prolongent lâintĂ©rieur vers lâextĂ©rieur. ProtĂ©gĂ©e naturellement par les collines voisines, la maison bĂ©nĂ©ficie dâun climat doux et dâune intimitĂ© prĂ©servĂ©e.
Une architecture pensée pour faire de chaque contrainte une opportunité de design et de confort.




