2022
📍 Localisation : Antsirabe, quartier de Tsenakely, Madagascar
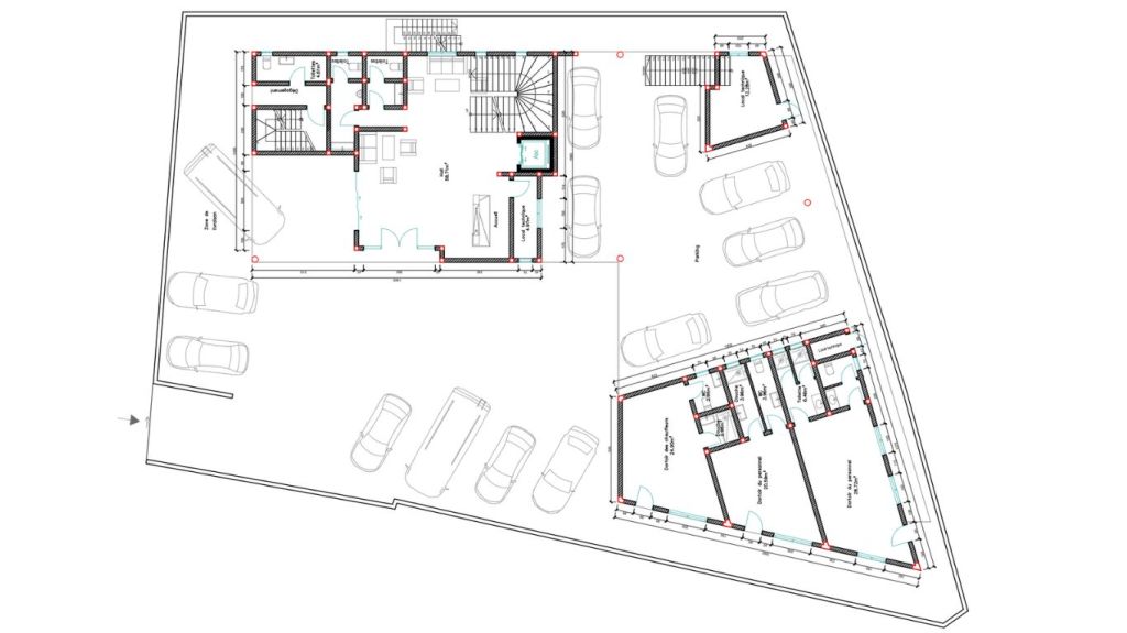
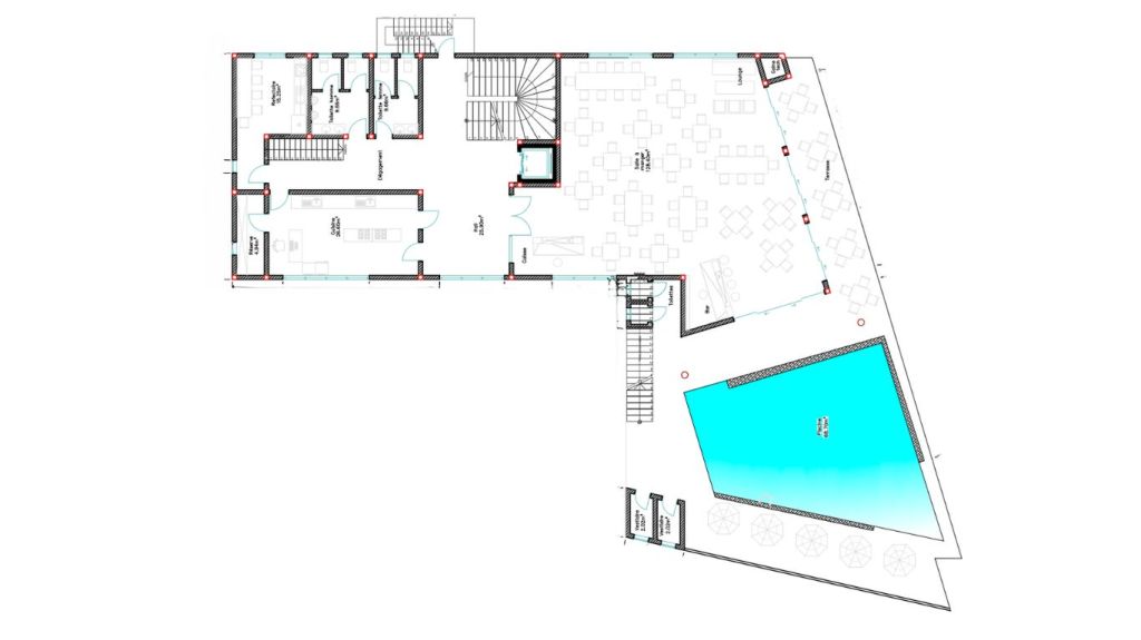
🏢 Usage : Hôtel
📏 Surface totale : 3 100 m²
📐 Nombre de niveaux : 8
🏗 Type de construction : Nouvelle
🎨 Style architectural : Moderne
🛠 Services réalisés par Trano 3D : APS, APD, plans d’exécution
En plein cœur d’Antsirabe, cet hôtel audacieux redéfinit le paysage urbain avec ses huit niveaux. Une première dans la ville, combinant élégance architecturale et optimisation de l’espace. Pensé pour répondre aux standards modernes tout en s’intégrant harmonieusement à son environnement, il s’élève à proximité d’un lac, offrant une vue imprenable. Trano 3D a conçu chaque détail avec rigueur, garantissant un équilibre parfait entre confort et fonctionnalité. L’hôtel vise une clientèle de classe moyenne, avec des espaces conçus pour le bien-être et l’efficacité. Un projet ambitieux, pensé pour dynamiser l’hôtellerie locale tout en respectant les normes architecturales et environnementales.












