
2024
📍 Localisation : Anjomakely, Ivato
🏢 Usage : Habitation
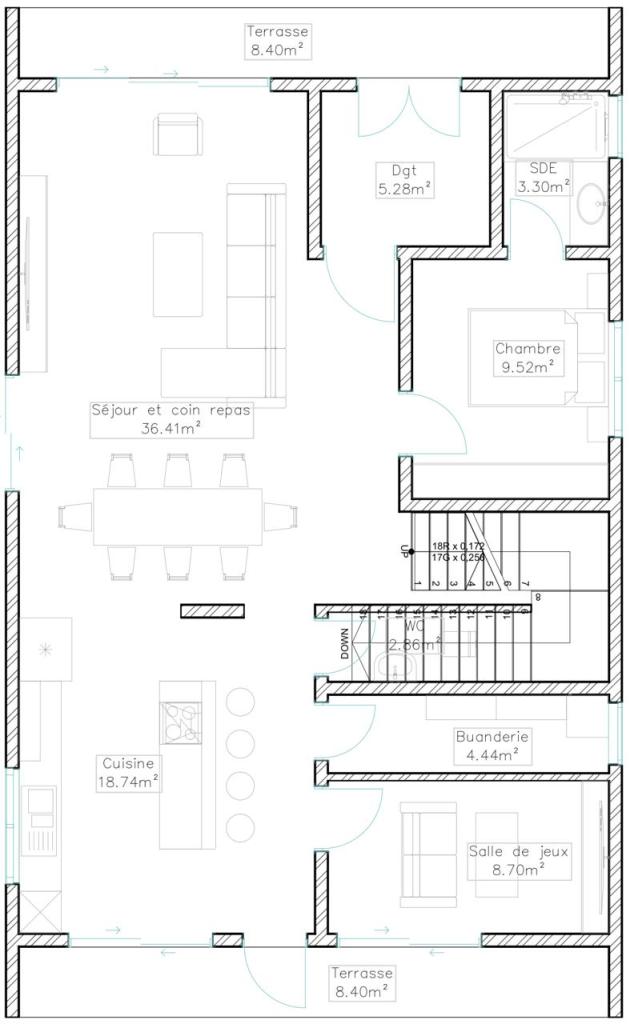
📏 Surface totale : 253 m²
📐 Nombre de niveaux : R+1
🏗 Type de construction : Nouvelle construction
🎨 Style architectural : Moderne minimaliste
🛠 Services réalisés par Trano 3D : APS
🏡Un écrin contemporain au cœur d’Ivato
Située dans le paisible quartier d’Ivato, cette villa compacte incarne l’essence même de l’élégance moderne. Son architecture aux lignes épurées, rehaussée par une façade immaculée et des ouvertures généreuses, invite à la lumière naturelle. Les volumes sont subtilement équilibrés, offrant un espace de vie optimisé sans compromis sur le confort.
Le toit en pente, associé à de grandes baies vitrées, confère à cette résidence un caractère unique, alliant modernité et charme intemporel. À l’extérieur, une clôture minimaliste assure discrétion et sécurité, tout en laissant entrevoir un jardin soigneusement aménagé.
Pensée pour ceux qui recherchent sérénité et style, cette villa s’intègre harmonieusement à son environnement naturel, avec en toile de fond les montagnes verdoyantes d’Ivato, pour un cadre de vie apaisant et inspirant.




